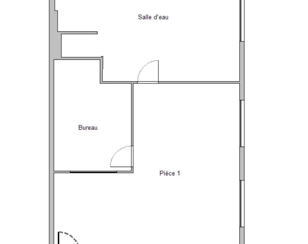
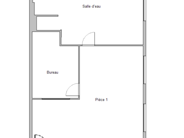
VAUVERT ZAC Coté Soleil – NEMAUSA IMMOBILIER vous propose à la location des bureaux neuf de 97,17m2 au 1er étage.
Les bureaux sont composés d’une cuisine aménagée et semi-équipée (évier, hotte, plaque), une grande salle princiaple, un bureau de 14,65m2 et un second bureau de 37,54m2 avec salle de bains et un toilette pouvant être cloisonné.
Climatisation réversible gainable, ouverture des volets roulants par domotique.
2 places de parking en extérieur au sein de la copropriété de 7 lots fermée et sécurisée par deux portails automatiques.
Loyer HT : 931,74 euros
Loyer TTC : 1138,09 euros
Charges : 111.91 euros
Loyer TTC charges comprises : 1250 euros
Dépot de garantie: 1138,09 euros € TTC
Honoraires agence: 1200€ TTC
POUR PLUS DE RENSEIGNEMENTS MERCI DE CONTACTER MADAME NAVARRO AU 06.35.48.15.23.
Nemausa Immobilier, 3 agences spécialisées sur Nîmes et sa région, Transactions, Locations, Gestion Locative, maisons, appartements, terrains, locaux commerciaux & fonds de commerce.
Siret 819500380, CPI 30022016000006029, enregistrée au RCS de Nîmes.
Les informations sur les risques auxquels ce bien est exposé sont disponibles sur le site Géorisques : www. georisques. gouv. fr.



















